Luxury Apartment Building, Moorpark St., Studio City, CA
- MEHRAN SHAHVERDI
- Jul 16, 2024
- 1 min read
Updated: Aug 11, 2025

Project Description:
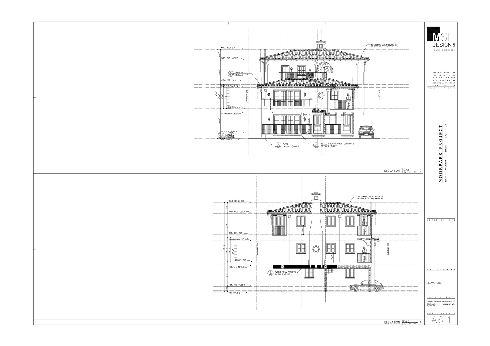
This Tuscan-style apartment, Situated in Studio City, this exquisite building features classic Tuscan elements such as elegant stone exteriors, detailed ironwork, and finely crafted wooden accents. The interior boasts limestone and terra-cotta tiles flooring, exposed brick walls, and luxurious finishes. Enveloped by lush greenery, this apartment offers a tranquil and sophisticated sanctuary that beautifully marries traditional Tuscan allure with refined elegance.














































































